1-комнатная квартира, 37.9 м2, 2 этаж

Первое Ипотечное Агентство, Чикина Венера Ибрагимовна

Показать телефон

Оставить заявку
ID: 19640261
Отправлено
В избранное
Адрес город Пушкин, Пушкин, Госпитальный переулок, д.21, корп.2 Купчино
7 400 000 Р
195 251 руб. за м2 За эти же деньги
125 квартир
Характеристики

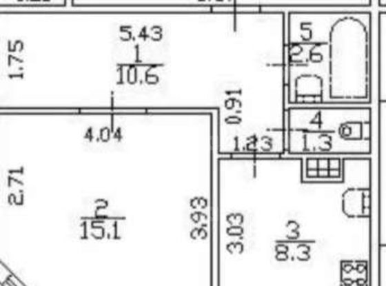
Площадь37.9 м2

Жилая15.1 м2

Тип домаПанельный

Этаж2

Этажей в доме4

Описание от продавца

Арт. . Продаётся уютная и светлая однокомнатная квартира в одном из самых красивых и зелёных районов Санкт-Петербурга - городе Пушкин. Квартира полностью готова к проживанию: выполнен аккуратный ремонт, пространство светлое и комфортное. Большим преимуществом является то, что в квартире остаётся практически вся мебель и техника - будущим владельцам нужно будет только привезти личные вещи. Не остаётся только диван и столик в комнате. Отличный вариант как для собственного проживания, так и для сдачи в аренду. Юридическая информация Прямая продажа. Один взрослый собственник. Квартира без обременений. Материнский капитал не использовался. Инфраструктура и транспорт Город Пушкин - историческая жемчужина Санкт-Петербурга, известная своими дворцами, парками и уникальной архитектурой. Жизнь здесь сочетает спокойствие, красоту и удобство городской инфраструктуры. Рядом с домом есть всё необходимое для комфортной жизни: остановки общественного транспорта - около 2 минут пешком детские сады, в том числе Baby Planet, а также детский сад №8 школа №335 высшие учебные заведения - Университет ФСИН и НИУ ВШЭ каток на Треугольной площади медицинские учреждения для взрослых и детей кафе, рестораны и салоны красоты магазины и супермаркеты: «Пятёрочка», «Перекрёсток», «Красное и Белое», пункты выдачи маркетплейсов. Район отличается благоприятной экологией - рядом нет крупных промышленных предприятий и интенсивных автомагистралей. Много зелени и мест для прогулок. Звоните - с удовольствием расскажем подробнее и организуем просмотр квартиры. [# #]

Описание объекта

Объявление о продаже однокомнатной квартиры, по адресу Пушкин, Госпитальный переулок, д.21, корп.2
Стоимость данной квартиры (37.90 кв.м.) на 2 этаже 4-этажного дома составляет 7 400 000 рублей. Удобное расположение: недалеко от метро Купчино.
Инфраструктура
  • Кафе
  • Кинотеатры
  • Магазины
  • Медицина
  • Музеи
  • Образование
  • Парки
  • Спорт