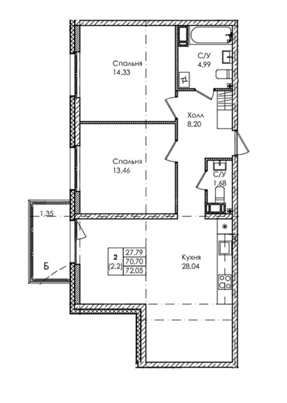
2-комнатная квартира, 73 м2, 3 этаж

Тренд недвижимость, Якусик Софья Алексеевна

Показать телефон

Оставить заявку
ID: 19639979
Отправлено
В избранное
Адрес город Сестрорецк, Сестрорецк, Авиационная ул, д.5, корп.3
23 000 000 Р
315 068 руб. за м2 За эти же деньги
68 квартир
Характеристики

Площадь73 м2

Жилая27.79 м2

Этаж3

Этажей в доме4

Описание от продавца

Код объекта: . Уникальное предложение на рынке недвижимости Сестрорецка: просторная двухкомнатная квартира на Авиационной улице, 5к3. Общая площадь квартиры составляет 73 кв. м, что делает её идеальным выбором для семей или тех, кто ценит пространство и комфорт. Квартира расположена на третьем этаже современного четырёхэтажного дома, построенного из монолитного материала. Высокие потолки (2,8 м) создают ощущение простора и свободы. Изолированные комнаты (14,33 и 13,46 кв. м) обеспечивают уединение и удобство для всех членов семьи. Особенно радует просторная кухня площадью 28,04 кв. м, которая станет местом для семейных ужинов и дружеских посиделок. Окна квартиры выходят на улицу, а наличие лоджии позволяет наслаждаться видами и свежим воздухом. Дом оборудован наземной парковкой и огороженной территорией, что обеспечивает безопасность и удобство для жителей. Раздельные и совмещённые санузлы, центральное отопление - всё это создаёт комфортные условия для жизни. Не упустите шанс стать владельцем этой прекрасной квартиры в одном из самых перспективных районов Сестрорецка. Звоните нам прямо сейчас, чтобы узнать больше и записаться на просмотр. Мы гарантируем безопасную сделку и юридическую поддержку нашим Клиентам. Поможем одобрить ипотеку с сниженной ставкой. [# #]

Описание объекта

Объявление о продаже двухкомнатной квартиры, по адресу Сестрорецк, Авиационная ул, д.5, корп.3
Стоимость данной квартиры (73.00 кв.м.) на 3 этаже 4-этажного дома составляет 23 000 000 рублей.
Инфраструктура
  • Кафе
  • Кинотеатры
  • Магазины
  • Медицина
  • Музеи
  • Образование
  • Парки
  • Спорт