1-комнатная квартира, 39 м2, 2 этаж

Тренд недвижимость, Глухов Ярослав Антонович

Показать телефон

Оставить заявку
ID: 19636805
Отправлено
В избранное
Адрес Кировский район, Стачек проспект, д.67, корп.7 Автово
9 790 000 Р
251 026 руб. за м2 За эти же деньги
99 квартир
Характеристики

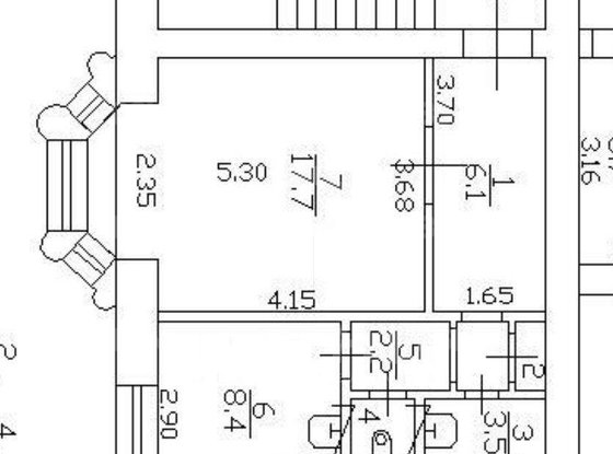
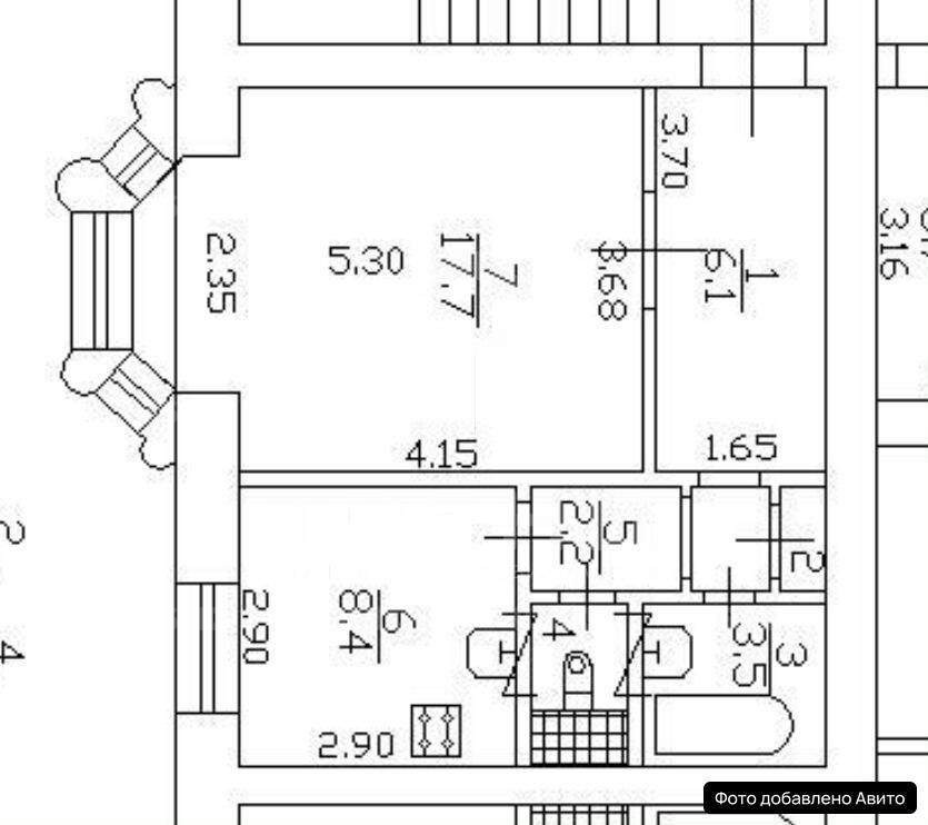
Площадь39 м2

Жилая17.7 м2

Тип домаКирпичный

Этаж2

Этажей в доме5

Описание от продавца

Код объекта: . В продаже ТИХАЯ и УЮТНАЯ квартира в историческом доме Сталинского классицизма О ДОМЕ: - Дом 1954г. в стиле Сталинского классицизма - Красивый фасад с лепниной - Зеленый двор с фонтаном и прогулочной зоной - Просторный двор позволяет без проблем разместить автомобиль - Спортивная и детская площадка во дворе О КВАРТИРЕ: - Квартира с эркером, что дает больше света - Окна выходят в прекрасный двор с видом на фонтан - Квартира без ремонта, что позволяет реализовать свои дизайнерские проекты - Высокие потолки - 3м - Толстые стены, отличная тепло- и шумоизоляция - Раздельный санузел - Вся мебель и техника останется О РАЙОНЕ: - Кировский исторический район - До станции метро " Автово " 7 минут пешком - До станции метро " Кировский завод " 10 минут пешком - Комсомольский сквер для прогулок через дорогу - В пределах квартала есть необходимая социальная и коммерческая инфраструктура - ТЦ Форум и ТЦ Румба в пешей доступности О ДОКУМЕНТАХ: - 1 взрослый собственник - Полная сумма в договоре - Прямая продажа - Никто не прописан - Нет долгов по КУ МЫ ПРЕДОСТАВЛЯЕМ: - Юридическое сопровождение сделки, помощь в одобрении ипотеки! - Помощь с продажей вашего объекта для покупки нашего! - Услуги страхования сделки и недвижимости! ЗВОНИТЕ ЗАПИСЫВАЙТЕСЬ НА ПРОСМОТР! [# #]

Описание объекта

Объявление о продаже однокомнатной квартиры, по адресу Стачек проспект, д.67, корп.7
Стоимость данной квартиры (39.00 кв.м.) на 2 этаже 5-этажного дома в Кировском районе Санкт-Петербурга составляет 9 790 000 рублей. Удобное расположение: недалеко от метро Автово.
Инфраструктура
  • Кафе
  • Кинотеатры
  • Магазины
  • Медицина
  • Музеи
  • Образование
  • Парки
  • Спорт
Продажа квартир на проспекте Стачек Все 4 объекта
Продажа квартир рядом с проспектом Стачек Все 5 объектов
Продажа квартир в Кировском районе Все 28 объектов