1-комнатная квартира, 40.4 м2, 9 этаж

Тренд недвижимость, Слодкевич Светлана Алексеевна

Показать телефон

Оставить заявку
ID: 19636801
Отправлено
В избранное
Адрес Всеволожский район ЛО, деревня Новое Девяткино, Главная улица, д.12 Девяткино
5 949 999 Р
147 277 руб. за м2 За эти же деньги
110 квартир
Характеристики

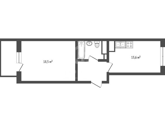
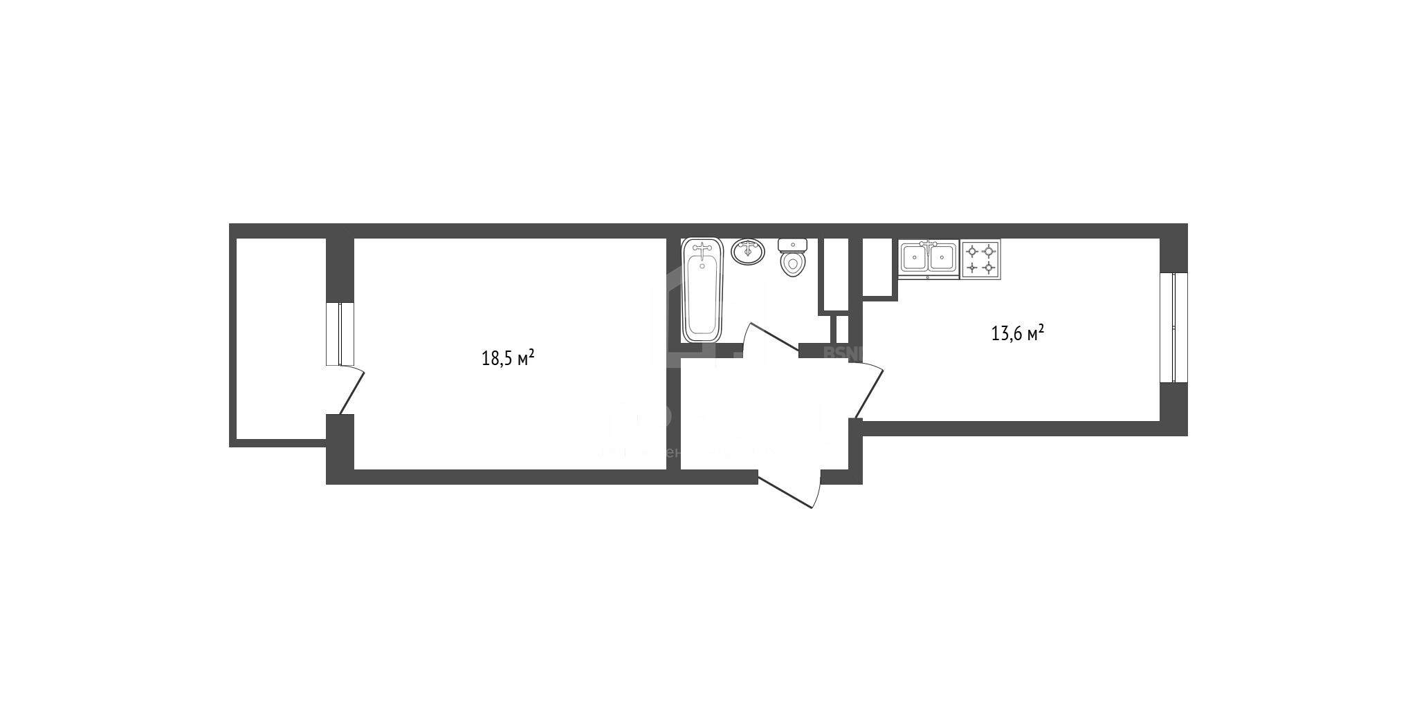
Площадь40.4 м2

Жилая18.5 м2

Этаж9

Этажей в доме25

Описание от продавца

Код объекта: . Продаётся 1-комнатная квартира в Ленинградской области на Главной улице, 12 - у метро Девяткино. Это отличный вариант распашной квартиры, ремонт от застройщика(в квартире никто не жил) , застекленный балкон дает больше пространства для размещения вещей. Главные преимущества: - 20 минут пешком до метро Девяткино - Вокруг дома много зелени, в 7 минутах ходьбы находится река Охта с местом для пикника и в 10 минутах Озёрный Парк - Выезд на кад в 10 минутах езды Квартира на 9-м этаже. Общая площадь - 40.4 м, жилая - 18.5,1 м, кухня - 13,6 м. Если вы ищете однокомнатную квартиру в СПб недорого, в новом доме с балконом и инфраструктурой, не откладывайте - такие варианты в локации быстро уходят. Звоните и записывайтесь на просмотр уже сегодня. Звоните нам прямо сейчас, чтобы узнать больше и записаться на просмотр. Мы гарантируем безопасную сделку и юридическую поддержку нашим Клиентам. Поможем одобрить ипотеку с сниженной ставкой. [# #]

Описание объекта

Объявление о продаже однокомнатной квартиры, по адресу деревня Новое Девяткино, Главная улица, д.12
Стоимость данной квартиры (40.40 кв.м.) на 9 этаже 25-этажного дома составляет 5 949 999 рублей. Удобное расположение: недалеко от метро Девяткино.
Инфраструктура
  • Кафе
  • Кинотеатры
  • Магазины
  • Медицина
  • Музеи
  • Образование
  • Парки
  • Спорт