1-комнатная квартира, 32.4 м2, 6 этаж

Тренд недвижимость, Новацкий Никита Сергеевич

Показать телефон

Оставить заявку
ID: 19636715
Отправлено
В избранное
Адрес Кировский район, Козлова улица, д.23, корп.1 Проспект Ветеранов
6 150 000 Р
189 815 руб. за м2 За эти же деньги
111 квартир
Характеристики

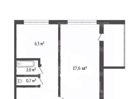
Площадь32.4 м2

Жилая17.6 м2

Этаж6

Этажей в доме9

Описание от продавца

Код объекта: . Уникальное предложение в Санкт-Петербурге: просторная и уютная квартира на улице Козлова, 23к1. Это идеальный выбор для тех, кто ценит комфорт и функциональность. Квартира расположена на шестом этаже девятиэтажного дома, построенного в 1972 году. Общая площадь - 32,4 кв. м, из которых 17,6 кв. м приходится на жилую площадь. Высота потолков - 2,55 м, что создаёт ощущение простора и свободы. В квартире сделан косметический ремонт, поэтому вы сможете сразу заселиться и наслаждаться уютом своего нового дома. Изолированная комната и раздельный санузел обеспечивают удобство и комфорт для жильцов. Лоджия - отличное место для отдыха и релаксации. Здесь можно разместить растения или обустроить небольшой уголок для отдыха. Наземная парковка позволяет без проблем найти место для автомобиля. Не упустите возможность стать обладателем этой замечательной квартиры! Звоните нам прямо сейчас, чтобы узнать больше и записаться на просмотр. Мы гарантируем безопасную сделку и юридическую поддержку нашим клиентам. Поможем одобрить ипотеку с сниженной ставкой. [# #]

Описание объекта

Объявление о продаже однокомнатной квартиры, по адресу Козлова улица, д.23, корп.1
Стоимость данной квартиры (32.40 кв.м.) на 6 этаже 9-этажного дома в Кировском районе Санкт-Петербурга составляет 6 150 000 рублей. Удобное расположение: недалеко от метро Проспект Ветеранов.
Инфраструктура
  • Кафе
  • Кинотеатры
  • Магазины
  • Медицина
  • Музеи
  • Образование
  • Парки
  • Спорт
Продажа квартир на улице Козлова
Ещё 4 фото
Продажа квартир рядом с улицей Козлова Все 4 объекта
Продажа квартир в Кировском районе Все 27 объектов