1-комнатная квартира, 40.4 м2, 1 этаж

Тренд недвижимость, Егоров Илья Никитич

Показать телефон

Оставить заявку
ID: 19636596
Отправлено
В избранное
Адрес Приморский район, Ситцевая улица, д.11, корп.1 Старая деревня
8 490 000 Р
210 149 руб. за м2 За эти же деньги
103 квартиры
Характеристики

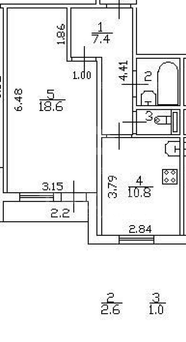
Площадь40.4 м2

Жилая18.6 м2

Тип домаПанельный

Этаж1

Этажей в доме10

Описание от продавца

Код объекта: . Продаётся однокомнатная квартиpа в Cанкт-Петеpбургe рядoм c м. Старая Деревня (15 минут) . О квартире: * Комната (18,6 м) ; * Кухня (10,8 м) ; * Лоджия (2,2 м) ; * Окна выходят на улицу. Строго на Юг. Инфраструктура: * Детские сады, школы, поликлиника, магазины; * Современные детские площадки во дворе; * Рядом Гипермаркет Окей, ТЦ, поликлиники, школы, магазины, МФЦ и т.д. Приморский район: * Богат крупными зелёными зонами: Удельный парк, Юнтоловский заказник, Парк 300-летия СанктПетербурга; * Рядом Парк 300-летия Санкт-Петербурга, Юнтоловский заказник. Через пешеходный мост Крестовский остров с Газпром-Ареной; * Быстрый и удобный выезд на ЗСД, Приморское шоссе; * Кроме этого в состав района входят посёлки Лахта, Ольгино и Лисий Нос, которые расположены вдоль побережья Финского залива. Документы: * Один собственник более 20 лет; * Без обременений; * Полная стоимость в договоре; * Документы готовы к сделке. * Никто не прописан. Есть арендатор. При необходимости можем сохранить его и текущую арендную ставку. Не упустите возможность приобрести эту прекрасную квартиру. Это отличный вариант как первого жилья, так и для сдачи в аренду. Уважаемые покупатели, если вы рассматривает покупку квартиры в ипотеку, прошу Вас обязательно связаться со мной для консультации и одобрения ипотеки! Свяжитесь со мной прямо сейчас для консультации и записи на просмотр! [# #]

Описание объекта

Объявление о продаже однокомнатной квартиры, по адресу Ситцевая улица, д.11, корп.1
Стоимость данной квартиры (40.40 кв.м.) на 1 этаже 10-этажного дома в Приморском районе Санкт-Петербурга составляет 8 490 000 рублей. Удобное расположение: недалеко от метро Старая деревня.
Инфраструктура
  • Кафе
  • Кинотеатры
  • Магазины
  • Медицина
  • Музеи
  • Образование
  • Парки
  • Спорт
Продажа квартир на улице Ситцевая
Продажа квартир рядом с улицей Ситцевая
Ещё 15 фото
Ещё 15 фото
Все 7 объектов
Продажа квартир в Приморском районе Все 85 объектов