ID: 19636468
Пожаловаться
Отправлено
В избранное
Адрес
Санкт-Петербург, Колпинский район, Колпино г., Колпинский, Павловская ул., д.54
Характеристики
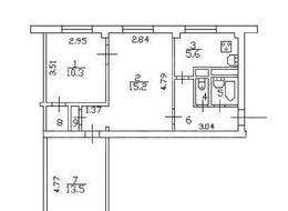
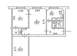
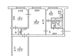
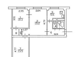
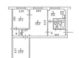
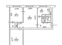
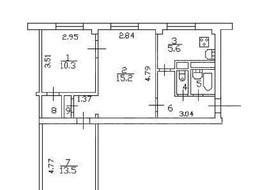
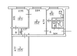
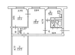
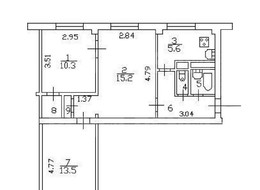
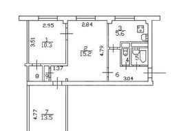
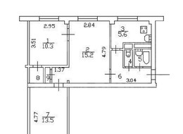
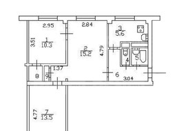
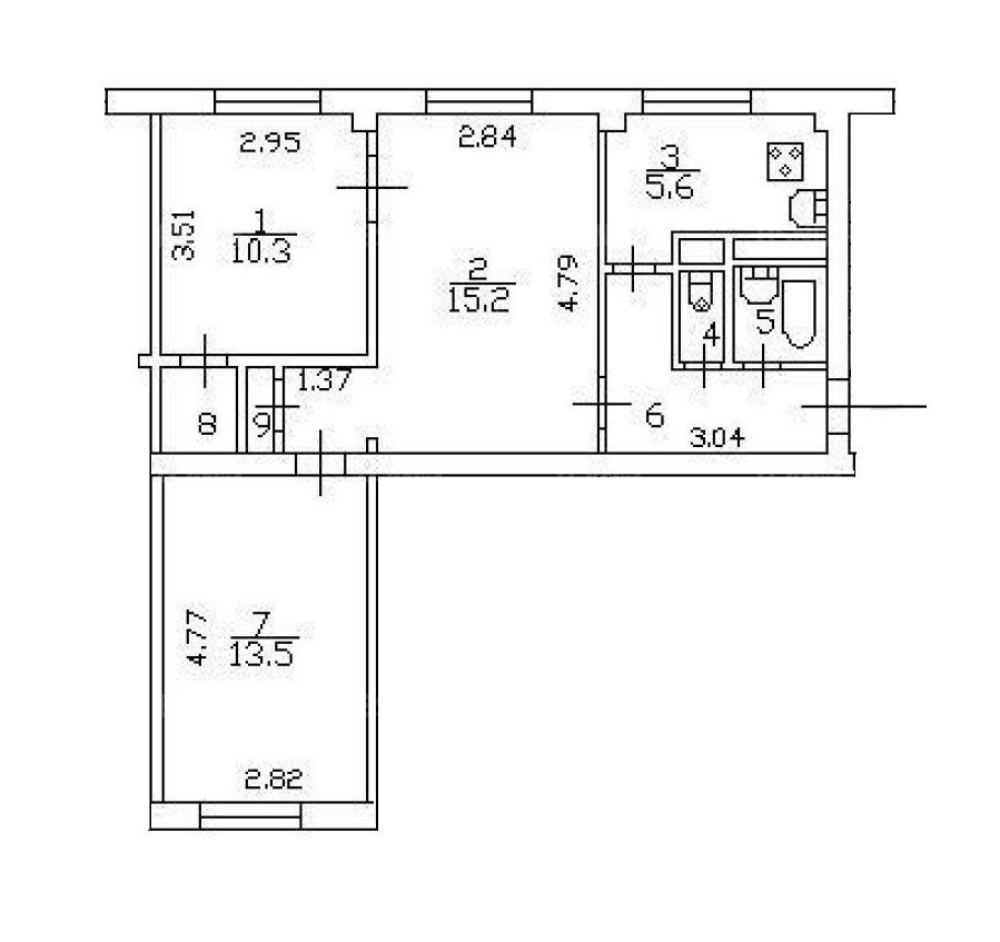
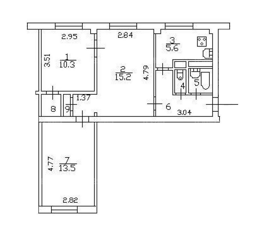
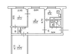
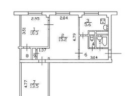
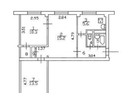
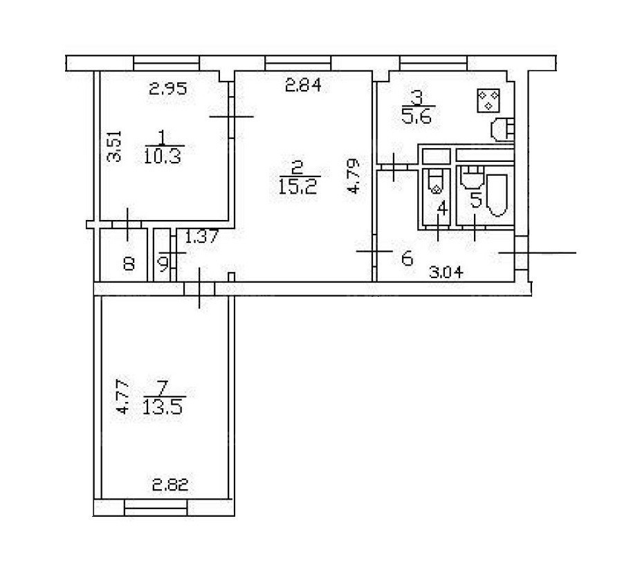
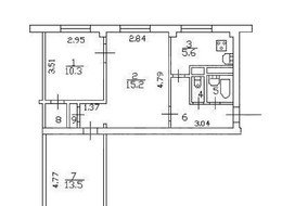
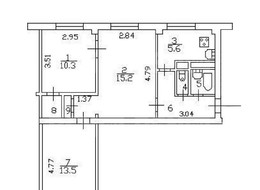
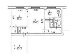
Площадь54.5 м2
Жилая38 м2
Комнаты38 м2
Кухня6 м2
Тип домаПанельный
Этаж5
Этажей в доме5
Окнаво двор
Телефонесть
Описание от продавца
Продается двухсторонняя 3-х комнатная квартира в центре Колпино, прописка Санкт-Петербург!
Прямая продажа, быстрое освобождение.
Один взрослый собственник.
Общая площадь квартиры 54,5 кв.м., сан.узел раздельный.
Квартира чистая, светлая, солнечная, можно въехать и жить.
Окна и вход – зелёный двор.
Преимущество последнего этажа – тихо над головой.
Протечек нет и никогда не было.
Хорошие соседи.
Развитая инфраструктура. Рядом автобусная остановка.
Арт. 120108293
Прямая продажа, быстрое освобождение.
Один взрослый собственник.
Общая площадь квартиры 54,5 кв.м., сан.узел раздельный.
Квартира чистая, светлая, солнечная, можно въехать и жить.
Окна и вход – зелёный двор.
Преимущество последнего этажа – тихо над головой.
Протечек нет и никогда не было.
Хорошие соседи.
Развитая инфраструктура. Рядом автобусная остановка.
Арт. 120108293
Описание объекта
Объявление о продаже трехкомнатной квартиры, по адресу Санкт-Петербург, Колпинский район, Колпино г., Колпинский, Павловская ул., д.54
Стоимость данной квартиры (54.50 кв.м.) на 5 этаже 5-этажного дома составляет 5 500 000 рублей. Окна выходят во двор
В квартире имеется: телефон.
Стоимость данной квартиры (54.50 кв.м.) на 5 этаже 5-этажного дома составляет 5 500 000 рублей. Окна выходят во двор
В квартире имеется: телефон.
Инфраструктура
- Кафе
- Кинотеатры
- Магазины
- Медицина
- Музеи
- Образование
- Парки
- Спорт