1-комнатная квартира, 30 м2, 5 этаж

Тренд недвижимость, Ковба Даниил Рамазанович

Показать телефон

Оставить заявку
ID: 19635292
Отправлено
В избранное
Адрес Красносельский район, Павлинская улица, д.5 Проспект Ветеранов
7 100 000 Р
236 667 руб. за м2 За эти же деньги
121 квартира
Характеристики

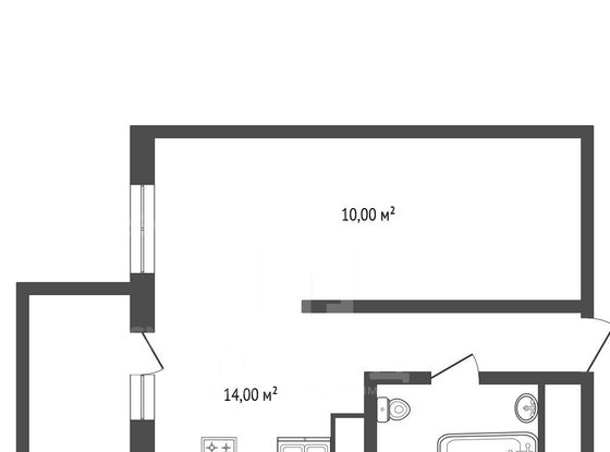
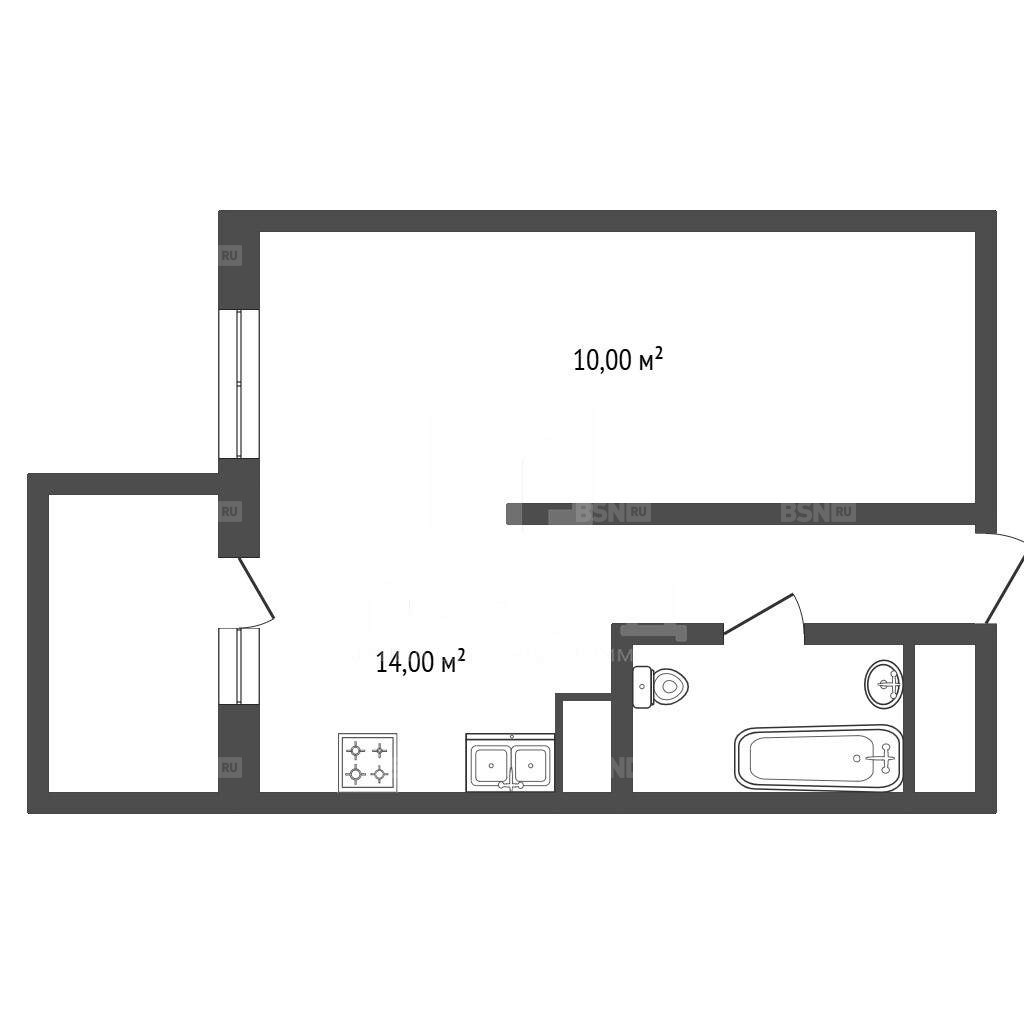
Площадь30 м2

Жилая10 м2

Этаж5

Этажей в доме8

Описание от продавца

Код объекта: . Уникальное предложение на рынке недвижимости Санкт-Петербурга! Продаётся однокомнатная квартира в современном жилом комплексе на Павлинской улице, 5. Этот объект идеально подойдёт тем, кто ценит комфорт и качество. Квартира расположена на 5 этаже восьмиэтажного монолитного дома, построенного в 2018 году. Благодаря удачной планировке и большой площади кухни (14 кв. м) пространство используется максимально эффективно. Жилая площадь составляет 10 кв. м, общая - 30 кв. м. Высота потолков 2,8 м создаёт ощущение простора. Дизайнерский ремонт выполнен с использованием качественных материалов, так что вы сможете сразу заселиться без дополнительных вложений. Дом оборудован многоуровневой парковкой, а территория комплекса огорожена - это обеспечивает дополнительную безопасность. Окна квартиры выходят во двор, а наличие балкона позволит вам наслаждаться видами и свежим воздухом. Не упустите шанс стать владельцем этой прекрасной квартиры! Позвоните нам прямо сейчас, чтобы узнать больше и записаться на просмотр. Мы гарантируем безопасную сделку и юридическую поддержку нашим Клиентам. Поможем одобрить ипотеку с сниженной ставкой. [# #]

Описание объекта

Объявление о продаже однокомнатной квартиры, по адресу Павлинская улица, д.5
Стоимость данной квартиры (30.00 кв.м.) на 5 этаже 8-этажного дома в Красносельском районе Санкт-Петербурга составляет 7 100 000 рублей. Удобное расположение: недалеко от метро Проспект Ветеранов.
Инфраструктура
  • Кафе
  • Кинотеатры
  • Магазины
  • Медицина
  • Музеи
  • Образование
  • Парки
  • Спорт
Продажа квартир в Красносельском районе Все 40 объектов
Продажа квартир у метро Проспект Ветеранов Все 49 объектов