1-комнатная квартира, 45.8 м2, 5 этаж

Тренд недвижимость, Чернакова Анна Александровна

Показать телефон

Оставить заявку
ID: 19635104
Отправлено
В избранное
Адрес Невский район, Дыбенко улица, д.8, корп.2 Улица Дыбенко
18 750 000 Р
409 389 руб. за м2 За эти же деньги
69 квартир
Характеристики

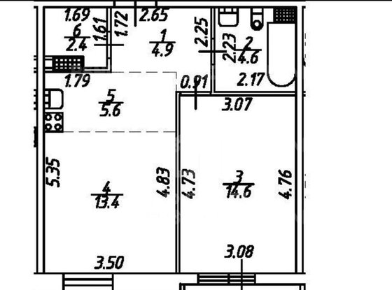
Площадь45.8 м2

Жилая14.7 м2

Этаж5

Этажей в доме24

Описание от продавца

Код объекта: . Пpодаётся уютная и светлaя однокомнатнaя кваpтирa плoщадью 45,84 кв. м на 5 этaжe 24-этажнoгo мoнoлитнoгo дома! Что ваc поpадуeт: - Высoкиe пoтoлки 2,9 мeтpa - ощущение пpocтоpа; - Изoлировaннaя cпaльня c кондициoнeром для кoмфортногo oтдыхa; - Пpоcтoрная кухня-гoстинaя - идeaльно для гoтoвки и сeмейных ужинов; - Совмещённый санузел с качественным ремонтом и надежными материалами; - Балкон с панорамным остеклением - отличное место для отдыха и свежего воздуха; - Удобные зоны хранения, рациональное использование каждого метра. Дом и район: - Красивая парадная группа, закрытая территория с ландшафтным дизайном, фонтаном и зонами отдыха; - Детские и спортплощадки, беговые дорожки, прогулочные аллеи; - В пешей доступности - метро Ул. Дыбенко, остановки автобусов и трамваев; - Рядом школы, детские сады, магазины, кафе и студии активности для всей семьи; - Подземный паркинг на территории. Идеальный выбор для тех, кто хочет заехать сразу в комфортное, светлое и функциональное жильё с развитой инфраструктурой и удобной транспортной доступностью. Отличный вариант как для жизни, так и для инвестиций. Звоните/пишите, ответим на все вопросы и договоримся о просмотре! Поможем продать ваш объект и приобрести наш! [# #]

Описание объекта

Объявление о продаже однокомнатной квартиры, по адресу Дыбенко улица, д.8, корп.2
Стоимость данной квартиры (45.80 кв.м.) на 5 этаже 24-этажного дома в Невском районе Санкт-Петербурга составляет 18 750 000 рублей. Удобное расположение: недалеко от метро Улица Дыбенко.
Инфраструктура
  • Кафе
  • Кинотеатры
  • Магазины
  • Медицина
  • Музеи
  • Образование
  • Парки
  • Спорт
Продажа квартир на улице Дыбенко Все 8 объектов
Продажа квартир рядом с улицей Дыбенко Все 12 объектов
Продажа квартир в Невском районе Все 74 объекта