1-комнатная квартира, 35 м2, 13 этаж

Тренд недвижимость, Мирзаев Рашад Агамали оглы

Показать телефон

Оставить заявку
ID: 19635005
Отправлено
В избранное
Адрес Приморский район, Планерная улица, д.99, стр1 Комендантский проспект
8 600 000 Р
245 714 руб. за м2 За эти же деньги
101 квартира
Характеристики

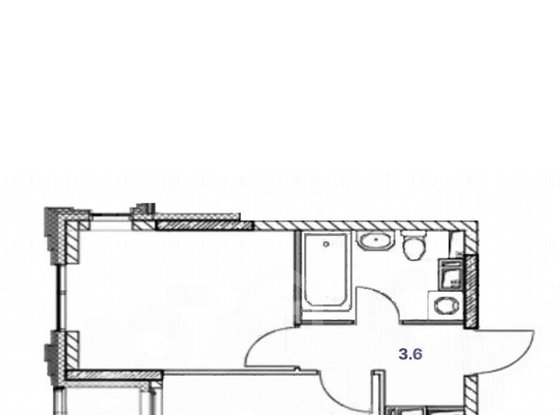
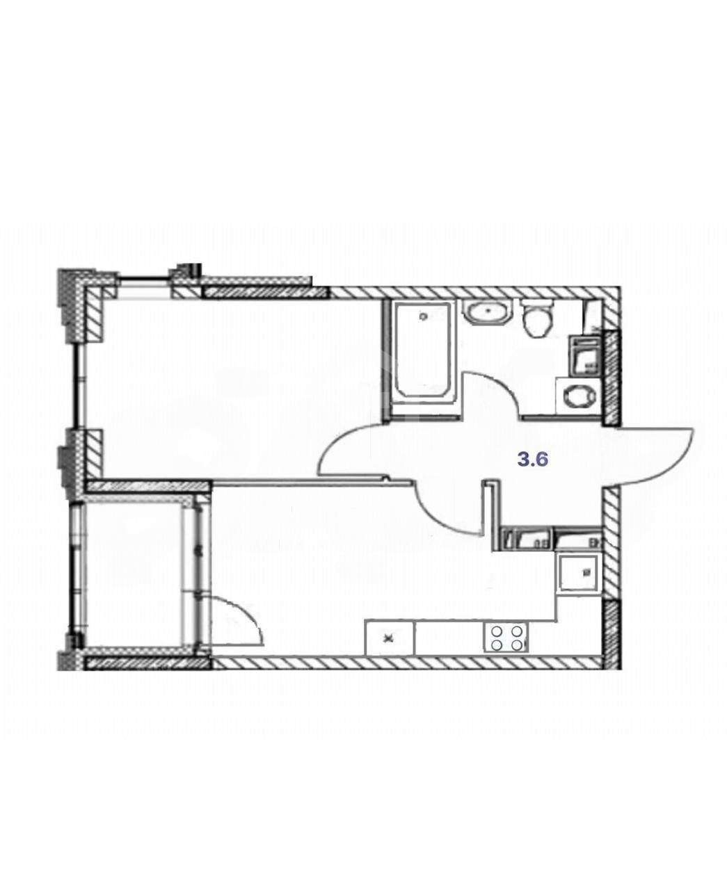
Площадь35 м2

Жилая10.3 м2

Этаж13

Этажей в доме13

Описание от продавца

Код объекта: . Ищете идеальное жильё в Санкт-Петербурге по выгодной цене? Предлагаем вашему вниманию однокомнатную квартиру по адресу: Планерная улица, 99. Эта квартира - отличный выбор для молодых специалистов и студентов, а также для инвесторов, ищущих ликвидное жильё. Квартира расположена в современном монолитном доме 2025 года постройки на 13 этаже, что обеспечивает прекрасный вид и естественное освещение. Общая площадь квартиры составляет 35 кв. м, жилая - 10,3 кв. м, площадь кухни - 12,1 кв. м. Высота потолков 3 метра создаёт ощущение простора. Окна выходят на улицу и во двор, что гарантирует достаточное количество света. В квартире есть балкон, где можно создать уютное место для отдыха. Дом находится в районе с хорошо развитой инфраструктурой: рядом есть всё необходимое для комфортной жизни - магазины, кафе, остановки общественного транспорта. Лёгкий доступ к основным магистралям позволит быстро добраться до любой точки города. Квартира продаётся без отделки, что даёт возможность новому владельцу воплотить свои дизайнерские идеи. Не упустите шанс стать владельцем этой замечательной квартиры! Позвоните нам прямо сейчас, чтобы узнать больше и записаться на просмотр. Мы гарантируем безопасную сделку и юридическую поддержку нашим клиентам. Поможем одобрить ипотеку с сниженной ставкой. [# #]

Описание объекта

Объявление о продаже однокомнатной квартиры, по адресу Планерная улица, д.99, стр1
Стоимость данной квартиры (35.00 кв.м.) на 13 этаже 13-этажного дома в Приморском районе Санкт-Петербурга составляет 8 600 000 рублей. Удобное расположение: недалеко от метро Комендантский проспект.
Инфраструктура
  • Кафе
  • Кинотеатры
  • Магазины
  • Медицина
  • Музеи
  • Образование
  • Парки
  • Спорт
Продажа квартир на улице Планерная Все 12 объектов
Продажа квартир рядом с улицей Планерная
Продажа квартир в Приморском районе Все 102 объекта