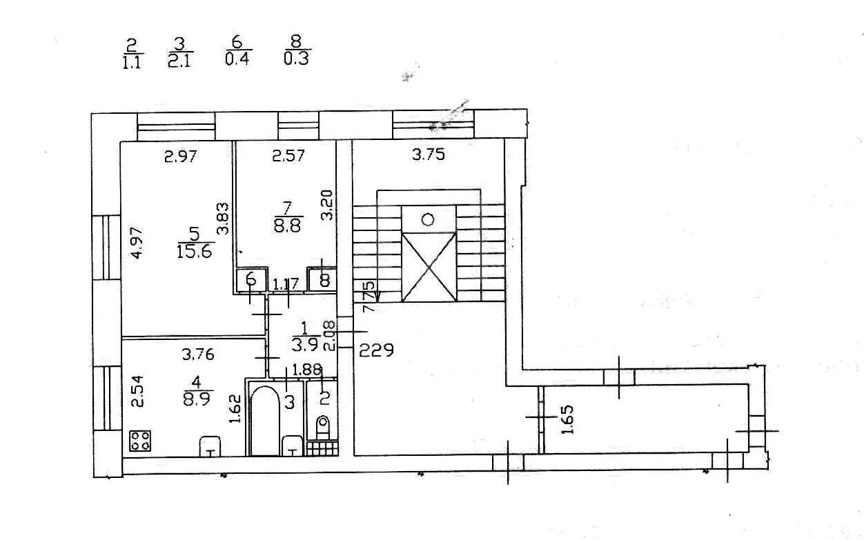
2-комнатная квартира, 41.1 м2, 6 этаж

Тренд недвижимость, Коледов Егор Дмитриевич

Показать телефон

Оставить заявку
ID: 19634828
Отправлено
В избранное
Адрес Красносельский район, Пограничника Гарькавого улица, д.34, корп.1 Проспект Ветеранов
8 000 000 Р
194 647 руб. за м2 За эти же деньги
120 квартир
Характеристики

Площадь41.1 м2

Жилая24.4 м2

Тип домаКирпичный

Этаж6

Этажей в доме9

Описание от продавца

Код объекта: . Предлагаем к продаже замечательную двухкомнатную квартиру, которая сочетает в себе уют, выгодное расположение и все необходимое для комфортной жизни. Это идеальный выбор для семьи, ценящей спокойствие и инфраструктуру. О квартире: Яркая угловая квартира с окнами на север и восток, что обеспечивает ее потрясающую инсоляцию - в комнатах всегда много солнечного света. Просторные изолированные комнаты и кухня позволяют с комфортом разместиться семье. Квартира ждет своего нового хозяина и готова к реализации любых дизайнерских идей. Жизнь в окружении парков: Главное преимущество локации - это близость к природе. Для прогулок и отдыха у вас под рукой целых четыре зеленых зоны: Парк "Сосновая поляна" Нижне-Ивановский и Верхне-Ивановский скверы Сквер Владимира Шалимова Вы сможете наслаждаться свежим воздухом и гулять в любое время, не тратя часы на дорогу. Развитая инфраструктура шаговой доступности: Для семей с детьми: Во дворе расположен детский сад, а в нескольких минутах ходьбы - несколько престижных общеобразовательных школ и гимназий. В 10 минутах езды вас ждет торговый центр "Жемчужная плаза" с широким выбором магазинов, кинотеатрами и фуд-кортом. Быт и продукты: Прямо в этом доме вас ждут продуктовый магазин, булочная и аптека. В шаговой доступности - все необходимые промтоварные и продуктовые магазины. Транспорт: Остановка общественного транспорта находится прямо напротив дома (всего ~50 метров) . Дорога до метро на транспорте займет всего минут. Всего в 5 минутах езды на транспорте находится железнодорожная станция "Сосновая поляна". Отсюда электрички всего за 20 минут домчат вас до Балтийского вокзала, что является отличной альтернативой метро. Это не просто квартира, это готовое решение для счастливой жизни. Зеленый двор, развитая инфраструктура для детей, парки за углом и прекрасная транспортная доступность - здесь есть всё, что нужно современной семье. Свяжитесь с нами, чтобы назначить просмотр и оценить все преимущества этого предложения лично! [# #]

Описание объекта

Объявление о продаже двухкомнатной квартиры, по адресу Пограничника Гарькавого улица, д.34, корп.1
Стоимость данной квартиры (41.10 кв.м.) на 6 этаже 9-этажного дома в Красносельском районе Санкт-Петербурга составляет 8 000 000 рублей. Удобное расположение: недалеко от метро Проспект Ветеранов.
Инфраструктура
  • Кафе
  • Кинотеатры
  • Магазины
  • Медицина
  • Музеи
  • Образование
  • Парки
  • Спорт
Продажа квартир на улице Пограничника Гарькавого
Продажа квартир рядом с улицей Пограничника Гарькавого Все 4 объекта
Продажа квартир в Красносельском районе Все 31 объект