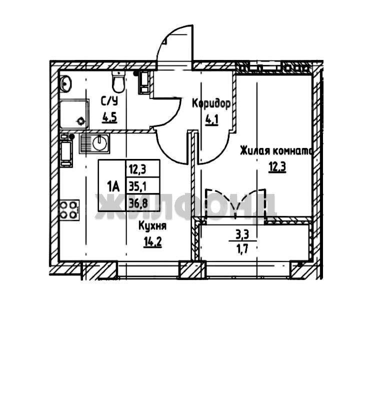
1-комнатная квартира, 36.8 м2, 4 этаж

ЖИЛФОНД, Виталий Денисович

Показать телефон

Оставить заявку
ID: 19634113
Отправлено
В избранное
Адрес Ломоносовский район ЛО, городской поселок Новоселье, Невская улица, д.5/7
6 650 000 Р
180 707 руб. за м2 За эти же деньги
139 квартир
Характеристики

Площадь36.8 м2

Жилая12.3 м2

Тип домаКирпичный

Этаж4

Этажей в доме7

Телефонесть

Описание от продавца

Дом по ул. Невская. Общей площадью: 36.80 кв.м. Продается просторная квартира с индивидуальной планировкой в живописном районе города Новоселье на улице Невской. Общая площадь квартиры составляет 36.8 кв.м. , что позволит создать уютное пространство для комфортного проживания. Квартира расположена на 4 этаже 7-этажного дома, что обеспечивает тишину и спокойствие. Инфраструктура вокруг дома развита и удобна для жизни. В шаговой доступности находятся магазины, аптеки, банки, детские сады и школы, что позволит вам с легкостью решать повседневные вопросы. Также рядом расположены парки и скверы, где можно провести время на свежем воздухе. Квартира имеет просторную кухню с возможностью обустройства обеденной зоны. В гостиной можно разместить удобную зону отдыха, а также рабочее место. Окна выходят на тихий двор, что обеспечивает отсутствие шума от проезжей части. Этот вариант идеально подойдет для молодой семьи или одного человека, желающего жить в просторной и светлой квартире. Также квартира может использоваться как инвестиционный объект для сдачи в аренду. Цена на эту уникальную квартиру составляет всего рублей. Это отличное предложение для тех, кто ценит комфорт и уют в сочетании с удобной локацией. Не упустите возможность приобрести свою мечту о собственном жилье в прекрасном городе Новоселье. Звоните и я отвечу на все ваши вопросы Возможен обмен на вашу недвижимость. При звонке, пожалуйста, сообщите номер варианта - JV [# #]

Описание объекта

Объявление о продаже однокомнатной квартиры, по адресу городской поселок Новоселье, Невская улица, д.5/7
Стоимость данной квартиры (36.80 кв.м.) на 4 этаже 7-этажного дома составляет 6 650 000 рублей.
В квартире имеется: телефон.
Инфраструктура
  • Кафе
  • Кинотеатры
  • Магазины
  • Медицина
  • Музеи
  • Образование
  • Парки
  • Спорт