2-комнатная квартира, 56 м2, 19 этаж

Тренд недвижимость, Гусейнов Юрий Шохратович

Показать телефон

Оставить заявку
ID: 19634098
Отправлено
В избранное
Адрес Выборгский район, поселок Парголово, Заречная улица, д.37 Парнас
10 900 000 Р
194 643 руб. за м2 За эти же деньги
113 квартир
Характеристики

Площадь56 м2

Жилая31.36 м2

Этаж19

Этажей в доме27

Описание от продавца

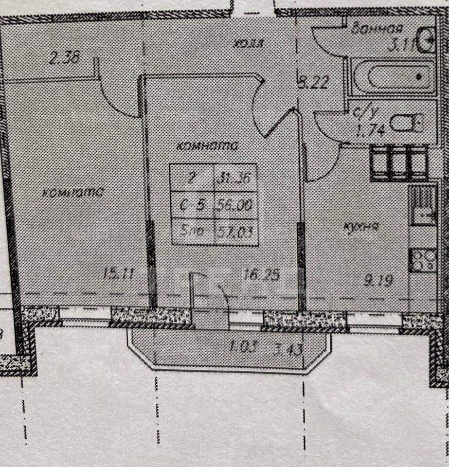
Код объекта: . Уникальное предложение в Парголово! Адрес: Россия, Санкт-Петербург, посёлок Парголово, Заречная улица, 37. Почему стоит обратить внимание? Выгодная цена. Наша квартира - это отличное сочетание цены и качества. Вы получаете просторное и уютное жильё по выгодной стоимости. Идеальное расположение. Дом, построенный в 2015 году, находится в динамично развивающемся районе с хорошей транспортной доступностью. Быстрый выезд на основные магистрали и лёгкий доступ к центру города делают жизнь здесь комфортной и удобной. Планировка и площадь. Квартира площадью 56 кв. м с двумя изолированными комнатами (15,11 и 16,25 кв. м) и кухней 19,19 кв. м предлагает достаточно пространства для комфортной жизни. Высота потолков 2,55 м создаёт ощущение простора. Качественный ремонт. Косметический ремонт выполнен из качественных материалов, что позволяет сразу заселиться без дополнительных вложений. Развитая инфраструктура. В шаговой доступности находятся магазины, школы, детские сады и поликлиники. Рядом с домом есть наземная парковка, что решает вопрос с местом для автомобиля. Не упустите шанс стать владельцем этой замечательной квартиры! Позвоните нам прямо сейчас, чтобы узнать больше и записаться на просмотр. Мы гарантируем безопасную сделку и юридическую поддержку нашим Клиентам. Поможем одобрить ипотеку с сниженной ставкой. [# #]

Описание объекта

Объявление о продаже двухкомнатной квартиры, по адресу поселок Парголово, Заречная улица, д.37
Стоимость данной квартиры (56.00 кв.м.) на 19 этаже 27-этажного дома в Выборгском районе Санкт-Петербурга составляет 10 900 000 рублей. Удобное расположение: недалеко от метро Парнас.
Инфраструктура
  • Кафе
  • Кинотеатры
  • Магазины
  • Медицина
  • Музеи
  • Образование
  • Парки
  • Спорт