дом, 500.2 м2

Турманова Елена Леонидовна

Показать телефон

Оставить заявку
ID: 3522979
Отправлено
В избранное
Адрес Выборгский район ЛО, поселок Ленинское, Мира улица, д.10
26 535 333 Р
53 049 руб. за м2
Характеристики

Площадь500.2 м2

Участок30.2 сот.

Этажей в доме3

Описание от продавца

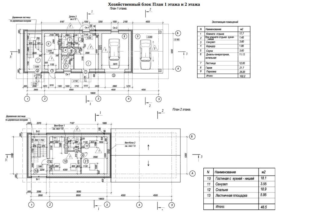
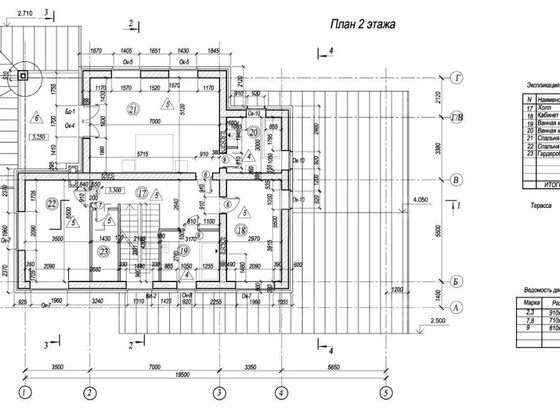
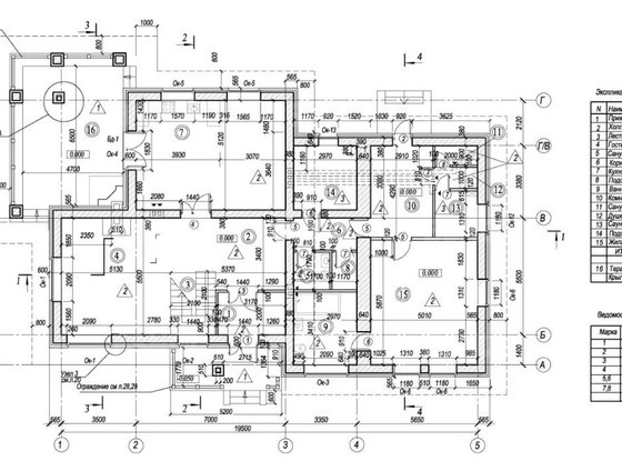
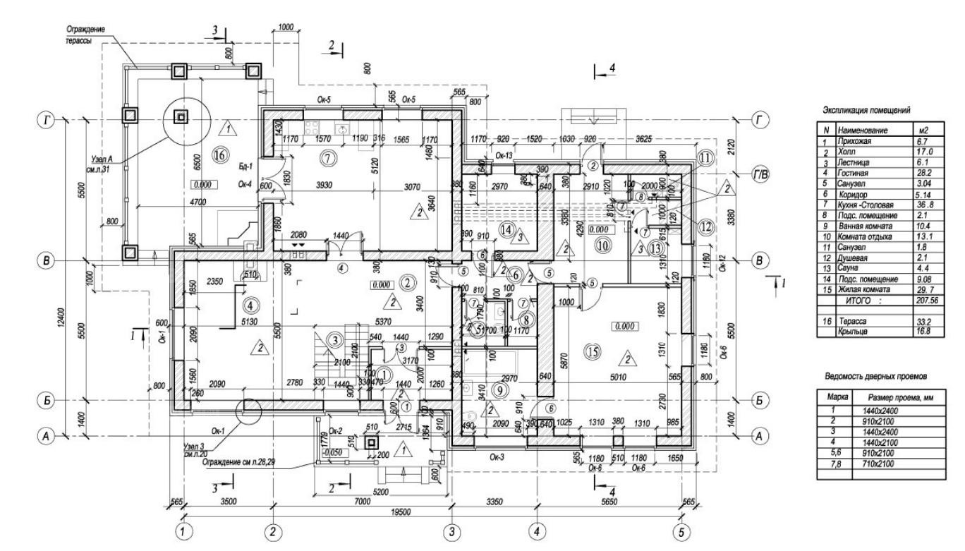
Продается через электронные торги на площадке ЭТП ГПБ Индивидуальный жило дом площадью 500,2 кв.м., расположенный по адресу: ЛО, Выборгский район, МО "Первомайское сельское поселение", пос. Ленинское, улица Мира, д.10 Год построки: 2019 Кадастровый номер: 47:01: :396 Дом распложен на земельном участке площадью 3022 +/- 38 кв.м. Категория земель: Земли населенных пунктов Виды разрешенного использования: под строительство малоэтажной коттеджной застройки. Кадастровый номер: 47:01: :80 Характеристики и описание объекта Жилой дом: Цоколь здания облицован путиловским камнем; Горизонтальная гидроизоляция стен - цементно-песчаный раствор 1:2, толщиной 35 мм с водостойкими добавками из жидкого стекла; Наружные стены 3-х слойные - кирпич пустотелый строительный, минераловатные плиты - 75 мм, воздушная прослойка 25 мм, лицевой кирпич пустотелый; Внутренние перегородки - гипсобетонные, пазогребные, толщиной 100 мм; Кровля - мягкая черепица по деревянной обрешётке; Этажность: 2, мансарда Хозяйственны блок: Цоколь здания облицован искусственным камнем; Горизонтальная гидроизоляция стен - цементно-песчаный раствор 1:2, толщиной 35 мм с водостойкими добавками из жидкого стекла; Наружные стены 3-х слойные - кирпич пустотелый строительный, минераловатные плиты - 80 мм, воздушная прослойка 20 мм, лицевой кирпич пустотелый; Внутренние перегородки - гипсобетонные, пазогребные, толщиной 100 мм; Кровля - гонтовые плитки; Этажность: 2 [# #]
Инфраструктура
  • Кафе
  • Кинотеатры
  • Магазины
  • Медицина
  • Музеи
  • Образование
  • Парки
  • Спорт
Продажа домов, коттеджей Все 29 объектов