офис, 158.5 м2

РАД, Смирнова Вера

Показать телефон

Оставить заявку
ID: 2306852
Отправлено
В избранное
Адрес Приморский район, 3-я линия 1-й половины улица, д.1 Удельная
14 384 746 Р
90 755 руб. за м2
Характеристики

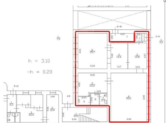
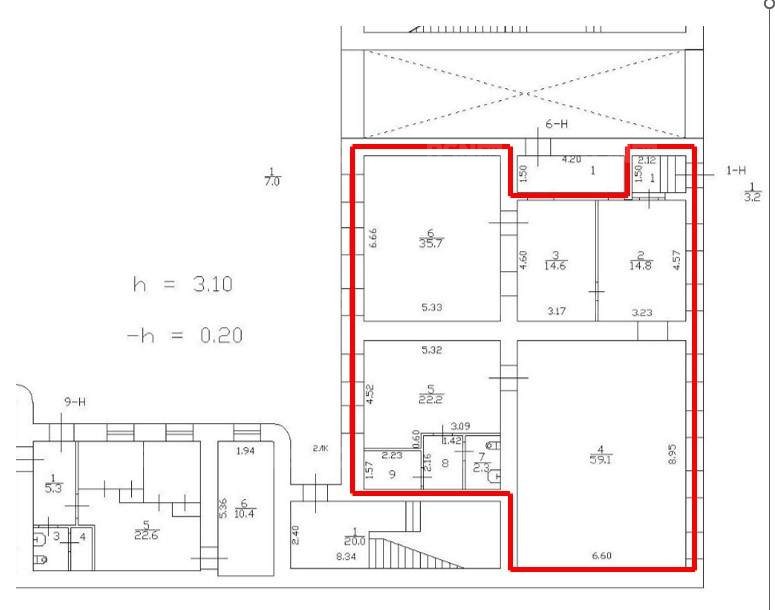
Площадь158.5 м2

Этажей в доме1

Описание от продавца

Код лота: 62C46C . Реализуется на торгах. Продается нежилое помещение свободного назначения в Василеостровском районе Санкт-Петербурга. Помещение расположено в пятиэтажном жилом здании 1917 года постройки. Окружение объекта составляет преимущественно жилая застройка. В ближайшем окружении располагаются школы, детские сады, магазины, кафе, рестораны, аптеки. Плотность застройки высокая. Парковка на улице и внутриквартальных проездах (платная) . Интенсивность транспортных и пешеходных потоков непосредственно возле объекта средняя. Транспортная доступность хорошая. Ближайшая станция метро «Василеостровская" расположена на расстоянии 700 м. Площадь: 158,5 кв.м. Этаж: цоколь Выделенная электрическая мощность: 11кВт Помещение сдано в долгосрочную аренду ФЛ: Срок действия аренды - до Арендная плата состоит из базовой и переменной части. Договором аренды предусмотрено увеличение размера базовой части 1 раз в год на уровень инфляции. Арендатор сдал помещение в субаренду ООО "Яндекс. Лавка" на срок до г. Помещение реализуется с торгов в рамках реализации непрофильных активов АО «Почта России». Торги проводятся на электронной площадке Lot-Online. Просмотр помещения осуществляется в период приема заявок на участие в торгах и только в рабочее время. Заявку на организацию осмотра необходимо подавать заранее. https: //catalog. lot-online. ru/index. php?dispatch=products. view&product_id= [# #]
Инфраструктура
  • Кафе
  • Кинотеатры
  • Магазины
  • Медицина
  • Музеи
  • Образование
  • Парки
  • Спорт
Продажа офисов в Приморском районе