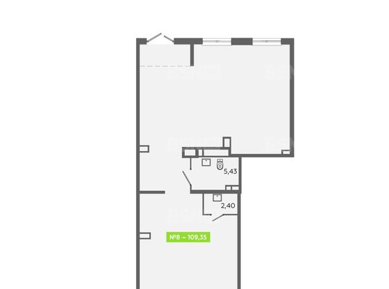
торговое помещение, 109.35 м2, 1 этаж

Группа Аквилон, Отдел продаж

Показать телефон

Оставить заявку
ID: 2306830
Отправлено
В избранное
Адрес Всеволожский район ЛО, городской поселок Янино-1, Заводская улица, д.1
18 272 841 Р
167 104 руб. за м2
Характеристики

Площадь109.35 м2

Этаж1

Этажей в доме12

Описание от продавца

Предлагаем вашему вниманию уникальное коммерческое помещение на первом этаже свободного назначения в современном жилом комплексе «Аквилон ЯНИНО». К приобретению доступны лоты во втором корпусе площадью от 51 до 129 м. В них можно разместить кафе или пекарню, магазины или детские развивающие центры, бытовые сервисы, а также салоны красоты. Описание объекта - Класс ЖК: комфорт - Сдача в эксплуатацию в 4 квартале 2026 года. - «Аквилон ЯНИНО» включает 2 жилых корпуса общей площадью порядка 66 тыс. м. Характеристика помещений - Есть помещения с выходом как на одну, так и на две стороны. - Потолки высотой 3,75 метра предоставляют дополнительное пространство и комфорт потенциальным арендаторам и собственникам бизнеса, а также позволяют установить внутри помещения высокие стеллажи, расширив ассортимент товара на квадратный метр. - Индивидуальный вентиляционный канал для обеспечения комфортного микроклимата. - Отделка Shell&Core, что позволяет вам адаптировать пространство под ваши нужды. - Отдельный вход с безбарьерным доступом, что обеспечивает удобство для клиентов. - Витринные окна и свето-прозрачные входные двери, придающие помещению современный и привлекательный вид. Инженерная подготовка - Полная разводка отопления, радиаторы, приборы учета и запорная арматура для вашего удобства. - Оборудованные системы водоснабжения, обеспечивающие бесперебойную работу вашего бизнеса. - Современная система противопожарной защиты для вашей безопасности. - Эффективные воздуховоды вытяжной вентиляции, создающие комфортные условия для работы. Локация В Янино высокая плотность застройки, сформировавшаяся инфраструктура делают это место идеальным для открытия вашего бизнеса. Большое количество застройщиков уже реализовали свои проекты, что подтверждает высокий приоритет самой локации. В шаговой доступности от ЖК расположены остановки общественного транспорта, ТРЦ, гипермаркеты, коммерческая и социальная инфраструктура. Не упустите свою возможность! Оперативные показы [# #]
Инфраструктура
  • Кафе
  • Кинотеатры
  • Магазины
  • Медицина
  • Музеи
  • Образование
  • Парки
  • Спорт
Продажа помещений на улице Заводская
Ещё 1 фото
Ещё 8 фото
Ещё 1 фото
Все 107 объектов