офис, 56.5 м2

РАД, Смирнова Вера

Показать телефон

Оставить заявку
ID: 2306583
Отправлено
В избранное
Адрес Кировский район, Стачек проспект, д.79, литера А Автово
2 436 000 Р
43 115 руб. за м2
Характеристики

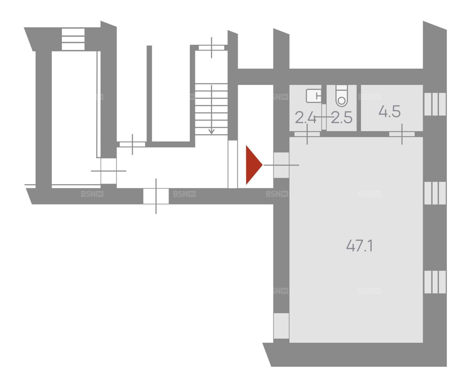
Площадь56.5 м2

Этажей в доме1

Описание от продавца

Код лота: 62C46C . Реализуется на торгах. Продается нежилое помещение свободного назначения в Кировском районе Санкт-Петербурга. Помещение расположено в десятиэтажном здании 1954 года постройки. Окружение объекта составляет преимущественно жилая застройка. В ближайшем окружении располагаются школы, детские сады, магазины, кафе, рестораны, аптеки. Плотность застройки высокая. Неорганизованная парковка на ближайших улицах и внутриквартальных проездах. Интенсивность транспортных и пешеходных потоков непосредственно возле объекта средняя. Транспортная доступность отличная. Ближайшая станция метро "Автово" расположена на расстоянии 330 м. Помещение находится в удовлетворительном состоянии. В настоящее время помещение не используется. Выявленные перепланировки: заложены оконные проемы и заложен проход в подлестничное пространство Площадь помещения: 56,5 кв. м Этаж: Подвал, заглубление 1,40 м Высота: 2,20 м Окна: 3 во двор подвальные (оконные проемы заложены) Вход: 1 общий вход со двора. Доступ во двор не ограничен. Коммуникации: Визуально выявлены элементы электроснабжения, отопления, водоснабжения, канализации. Требуется заключение договоров с балансодержателями сетей! В помещении проходят транзитные трубы! Возможное использование: офис Помещение реализуется с торгов по приватизации по поручению Комитета по управлению городским имуществом Правительства Санкт-Петербурга. Торги проводятся на электронной площадке Lot-Online. Просмотр помещения осуществляется в период приема заявок на участие в торгах и только в рабочее время. Заявку на организацию осмотра необходимо подавать заранее. https: //catalog. lot-online. ru/index. php?dispatch=products. view&product_id= [# #]
Инфраструктура
  • Кафе
  • Кинотеатры
  • Магазины
  • Медицина
  • Музеи
  • Образование
  • Парки
  • Спорт
Продажа офисов в Кировском районе
Ещё 15 фото
Стойкости улица, д.27, к.А Проспект Ветеранов