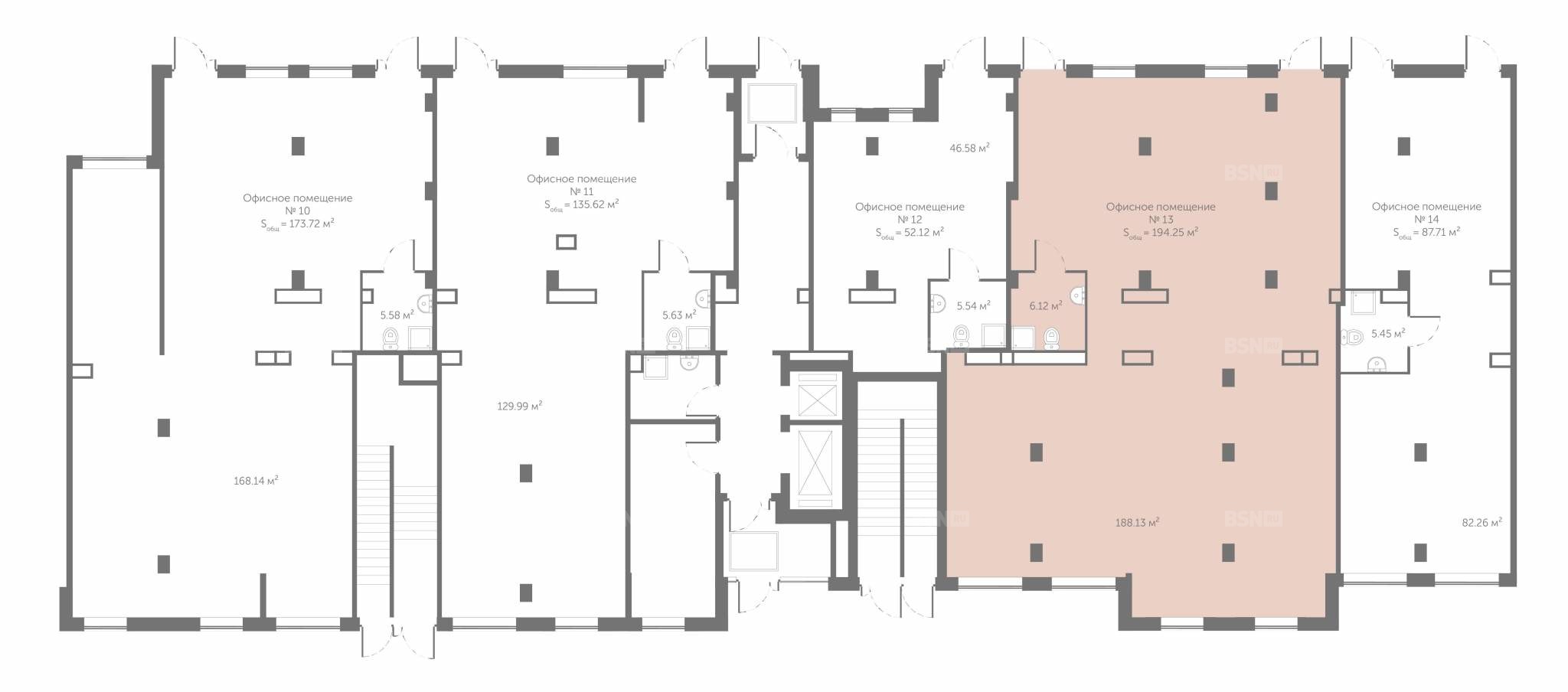
универсальное помещение, 194.25 м2, 1 этаж

ФСК, Отдел продаж

Показать телефон

Оставить заявку
ID: 2305432
Отправлено
В избранное
Адрес Всеволожский район ЛО, Мурино, Оборонная улица, д.2, корп.5 Девяткино
36 943 922 Р
190 188 руб. за м2
Характеристики

Площадь194.25 м2

Этаж1

Этажей в доме12

Описание от продавца

Продается помещение свободного назначения в UP-квартале «Воронцовский». Прямая продажа от застройщика. Квартал «Воронцовский» - жилой комплекс класса комфорт+ в Новом Девяткино. В составе комплекса: 3 корпуса по 12 этажей - на квартир. Комплекс расположен в обжитом районе по соседству с уже заселенными многоквартирными домами, что дополнительно увеличивает потенциальный пешеходный трафик. Преимущества помещения: - Безбарьерный вход на уровне земли - Большие витринные окна - Открытая планировка. Гибкие возможности кастомизации помещения под ваши задачи. - Возможность объединения с соседними помещениями - Высота потолков до 3,7 - Подведены все инженерные коммуникации - Оптимальная мощность электроснабжения - Возможность размещения рекламной вывески - Место для установки кондиционеров [# #]
Инфраструктура
  • Кафе
  • Кинотеатры
  • Магазины
  • Медицина
  • Музеи
  • Образование
  • Парки
  • Спорт