офис, 47.1 м2

РАД, Смирнова Вера

Показать телефон

Оставить заявку
ID: 2307499
Отправлено
В избранное
Адрес Центральный район, Садовая улица, д.28, корп.30к1 Гостиный двор
372 498 Р / мес.
Характеристики

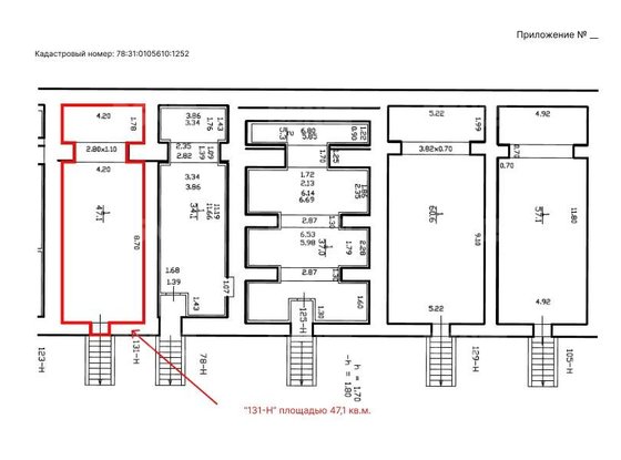
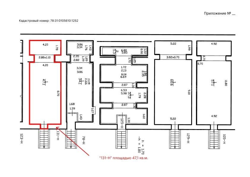
Площадь47.1 м2

Этажей в доме1

Описание от продавца

Код лота: 62C46C . Реализуется на торгах. Реализуется право аренды части помещения свободного назначения, расположенного на Садовой улице, на территории Апраксина двора. Помещение находится в собственности Санкт-Петербурга. Объект расположен в историческом центре Санкт-Петербурга, в пешей доступности от станции метро и остановок наземного общественного транспорта. Окружение объекта представлено преимущественно общественно-деловой застройкой. В непосредственной близости находится Универмаг Большой Гостиный двор, торговые ряды Апраксина двора, офисные и торговые помещения, а также объекты общественного питания. В настоящее время помещение не используется, требуется проведение ремонтных работ. Договор аренды заключается сроком на 3 (три) года для использования под нежилые цели. Инженерные коммуникации: электроснабжение, канализация Кадастровый номер помещения, часть которого сдается в аренду: 78: 31: : 1252 Площадь сдаваемой части: 47,1 кв. м Назначение: нежилое Наименование: нежилое помещение Этаж: подвал, заглубление более 1,5м Входы: 1 отдельный с улицы Окна: нет Здание, в котором расположено помещение относится к числу объектов культурного наследия регионального значения. Помещение расположено в непосредственной близости от крупной городской магистрали Садовой улице. Местоположение объекта характеризуется высокими пешеходным и автомобильным трафиками. Станция метро «Гостиный двор» и Невский проспект м Оптимальное использование помещения: в качестве помещения торгово-офисного назначения Торги проходят по поручению Комитета Имущественных отношений Санкт-Петербурга. https: //catalog. lot-online. ru/index. php?dispatch=products. view&product_id= [# #]
Инфраструктура
  • Кафе
  • Кинотеатры
  • Магазины
  • Медицина
  • Музеи
  • Образование
  • Парки
  • Спорт
Аренда офисов на улице Садовая
Ещё 6 фото
офис , 31.4 м2 201 734 P / мес.
Ещё 2 фото
офис , 48 м2 292 403 P / мес.
офис , 49.7 м2 303 277 P / мес.
Все 26 объектов
Аренда офисов в Центральном районе Все 30 объектов
Аренда офисов у метро Гостиный двор
Ещё 6 фото
офис , 31.4 м2 201 734 P / мес.
Ещё 2 фото
офис , 48 м2 292 403 P / мес.
офис , 49.7 м2 303 277 P / мес.
Все 20 объектов