ID: 19556265                
                
        
            
            Пожаловаться
Отправлено
                                    
                       В избранное                    
                            
                Адрес
                
                                                                        Всеволожский район ЛО,
                                                                
                                        
                                                                        
                                                            деревня Новосаратовка
                                                                            
                                                                                    Ленинградская область, д. Новосаратовка, улица Романтиков, дом 1, корпус 5                                                                                            
                    
                
                                
            
            
            
                            
                                 
                        
                                 
     
    
                
                        
            
            
                        
            Характеристики
                
                                                                                
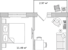
                                                Площадь37.4 м2
Жилая11.2 м2
Тип домаКирпичный
Этаж18
Этажей в доме23
Санузелраздельный
Балконбалкон
Срок сдачи3 кв. 2025
Тип санузлараздельный
Описание от продавца
Продаётся однокомнатная квартира в жилом комплексе Город Первых, Корпус 4.5
ЦЕНА УКАЗАНА С УЧЕТОМ СКИДКИ ЗА НАЛИЧНЫЕ.
Акция: Скидка 16% при полной оплате наличными. В ипотеку дороже! Акция действует до 
ДОМ СДАН!
Квартира с чистовой отделкой: на полу ламинат, на стенах обои под покраску, установлены межкомнатные двери, в санузлах везде положена плитка, установлена вся сантехника!
В квартале уже построен один детский сад, и мы начали строить второй!
«Город Первых» — премьерный квартал масштабного проекта ЦДС «Новосаратовка». Здесь реализована концепция «город у города»: продуманная в деталях концепция района, новая социальная, торговая и инженерная инфраструктура, многоуровневая транспортная система, современные архитектурные решения в сочетании с благоприятной экологической обстановкой, — все это будет доступно для жителей нашего нового проекта.
Торопитесь! Количество квартир ограничено! Подробности уточняйте у менеджера отдела продаж.
Прямая продажа от застройщика Группы ЦДС!
Номер в базе ЦДС: 
Номер квартиры — 331
Условия приобретения уточняйте в отделе продаж застройщика.
                Описание объекта
Отличный вариант для тех, кто хочет купить однокомнатную квартиру в новостройке Санкт-Петербурга. Кирпичный 18-этажный дом , срок сдачи 3 кв. 2025 и располагается в Всеволожском районе ЛО . Квартира площадью 37.40 кв.м. на 18 этаже этого жилого дома имеет раздельный санузел, балкон.
                                    Инфраструктура
        - Кафе
- Кинотеатры
- Магазины
- Медицина
- Музеи
- Образование
- Парки
- Спорт
 
                         
                        
                        
                     
                         
                        
                        
                     
                         
                        
                        
                     
                         
                        
                        
                     
                         
                        
                        
                     
                         
                        
                        
                     
                         
                        
                        
                     
                         
                        
                        
                     
                         
                        
                        
                     
                         
                        
                        
                     
                         
                        
                        
                     
                         
                        
                        
                     
                         
                        
                        
                     
                         
                        
                        
                     
                         
                        
                        
                     
                         
                        
                        
                     
                         
                        
                        
                     
                         
                        
                        
                     
                         
                        
                        
                     
                        