2х-комнатная квартира, 62.29 м2, 9 этаж

АРК Риелтор, Отдел продаж

Показать телефон

Оставить заявку
ID: 19556244
Отправлено
В избранное
Адрес Красногвардейский район, Магнитогорская улица, д.11 Новочеркасская
32 588 882 Р
523 180 руб. за м2 За эти же деньги
31 квартира
Характеристики

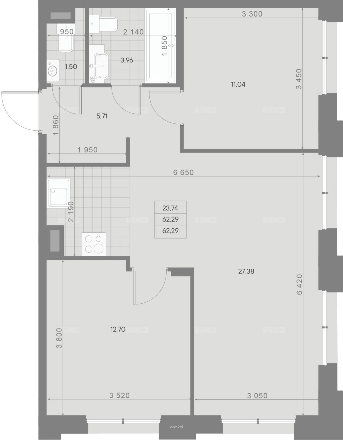
Площадь62.29 м2

Жилая43.6 м2

Этаж9

Этажей в доме11

Срок сдачи4 кв. 2026

Описание от продавца

В центре Петербурга на берегу реки Охты представлена 2-х комнатная квартира на 9 этаже общей площадью 62.29 кв.м. Дом бизнес-класса в креативном центре Петербурга на берегу реки Охты и 25 минутах пешком до Невского проспекта и 17 минутах пешком до м. Новочеркасская. Неповторимая и цельная атмосфера места. Река, которая обнимает дома, дышащие фасады из натуральных материалов, парк с родниками и травами во дворе и уникальная пластичная архитектура созвучны характеру современного города. АЛЬПЕН - дом твоего равновесия. - Приватные корпуса; - Выразительные фасадные решения; - Декоративная подсветка фасада; - Панорамные террасы с видом на реку Охта; - Квартиры с верандами формата high flat; - Витринное остекление. Внутренний двор, набережная и прилегающие территории образуют цельную эко среду, идеальную для комфортной, насыщенной новыми впечатлениями и эмоциями, динамичной жизни. Авторский двор-парк, переходящий в набережную - живописное природное окружение с тропами, променадом и увлекательными маршрутами для путешествий. Холлы и общественные пространства - продолжение парка. Авторское прочтение общественного пространства от московского дизайн бюро STUDIO 211 с первых минут позволяет ощутить ценность равновесия. АЛЬПЕН - для тех, кто ценит близость центра, уединенность и природную энергетику. - Семейная ипотека 4,3% на весь период кредитования. Ипотека предоставляется Сбербанком. Сумма кредита до 12 млн рублей, первый взнос от 20,1%. - Рассрочка на 2/6/12 месяцев. [# #]

Описание объекта

Отличный вариант для тех, кто хочет купить двухкомнатную квартиру в новостройке Санкт-Петербурга. 9-этажный дом , срок сдачи 4 кв. 2026 и располагается в Красногвардейском районе Санкт-Петербурга поблизости от станции метро Новочеркасская. Квартира площадью 62.29 кв.м. на 9 этаже этого жилого дома
Инфраструктура
  • Кафе
  • Кинотеатры
  • Магазины
  • Медицина
  • Музеи
  • Образование
  • Парки
  • Спорт
Продажа квартир на улице Магнитогорская Все 18 объектов
Продажа квартир в Красногвардейском районе Все 26 объектов
Продажа квартир у метро Новочеркасская Все 23 объекта