1х-комнатная квартира, 36.6 м2, 17 этаж

Группа ЦДС

Показать телефон

Оставить заявку
ID: 19556173
Отправлено
В избранное
Адрес Всеволожский район ЛО, массив Новосаратовка, Ленинградская область, Новосаратовка
5 023 570 Р
137 256 руб. за м2 За эти же деньги
77 квартир
Характеристики

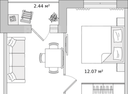
Площадь36.6 м2

Жилая12.07 м2

Тип домаКирпичный

Этаж17

Этажей в доме23

Санузелраздельный

Балконлоджия

Тип санузлараздельный

Описание от продавца

Продаётся однокомнатная квартира в жилом комплексе Город Первых, Корпус 4.7 ЦЕНА УКАЗАНА С УЧЕТОМ СКИДКИ ЗА НАЛИЧНЫЕ. Акция: Скидка 14% при полной оплате наличными. В ипотеку дороже! Акция действует до Квартира с чистовой отделкой: на полу ламинат, на стенах обои под покраску, установлены межкомнатные двери, в санузлах везде положена плитка, установлена вся сантехника! В квартале уже построен один детский сад, и мы начали строить второй! Ввод в эксплуатацию намечен на 4 кв 2025 года. «Город Первых» — премьерный квартал масштабного проекта ЦДС «Новосаратовка». Здесь реализована концепция «город у города»: продуманная в деталях концепция района, новая социальная, торговая и инженерная инфраструктура, многоуровневая транспортная система, современные архитектурные решения в сочетании с благоприятной экологической обстановкой, — все это будет доступно для жителей нашего нового проекта. Торопитесь! Количество квартир ограничено! Подробности уточняйте у менеджера отдела продаж. Прямая продажа от застройщика Группы ЦДС! Номер в базе ЦДС: Номер квартиры — 136 Условия приобретения уточняйте в отделе продаж застройщика.

Описание объекта

Отличный вариант для тех, кто хочет купить однокомнатную квартиру в новостройке Санкт-Петербурга. Кирпичный 17-этажный дом и располагается в Всеволожском районе ЛО . Квартира площадью 36.60 кв.м. на 17 этаже этого жилого дома имеет раздельный санузел, лоджию.
Инфраструктура
  • Кафе
  • Кинотеатры
  • Магазины
  • Медицина
  • Музеи
  • Образование
  • Парки
  • Спорт