студия, 30.72 м2, 15 этаж

Группа ЦДС

Показать телефон

Оставить заявку
ID: 19552386
Отправлено
В избранное
8 213 529 Р
267 367 руб. за м2 За эти же деньги
117 квартир
Характеристики

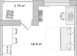
Площадь30.72 м2

Тип домаКирпичный

Этаж15

Этажей в доме17

Санузелраздельный

Балконлоджия

Срок сдачи1 кв. 2022

Тип санузлараздельный

Описание от продавца

Продаётся квартира-студия в жилом комплексе ЦДС Dreamline, Корпус 2.5 ЦЕНА УКАЗАНА С УЧЕТОМ СКИДКИ ЗА НАЛИЧНЫЕ. При покупке квартиры без участия агентов дарим сертификат новосела в магазин ХОФФ на сумму рублей. Им можно оплатить не более 15% от суммы покупки. Квартиры с чистовой отделкой: на полу ламинат, на стенах обои под покраску, установлены межкомнатные двери, в санузлах везде положена плитка, установлена вся сантехника! Ввод в эксплуатацию планируется в 1 квартале 2027 года. ЦДС Дримлайн — это новый ЖК на Парашютной улице. Первая очередь введена в эксплуатацию, дома второй очереди высокой степени готовности! Инфраструктура, около дома: Детский сад для 350 малышей - построен; Школа для 825 учеников - построена; Поликлиника и центр общей врачебной практики в соседнем квартале. В домах есть кладовые, которые можно купить и не устраивать склад на лоджии. Около дома - многоэтажный паркинг. Прямая продажа от застройщика Группы ЦДС! Номер в базе ЦДС: Номер квартиры — 1185 Условия приобретения уточняйте в отделе продаж застройщика.

Описание объекта

Отличный вариант для тех, кто хочет купить квартиру-студию в новостройке Санкт-Петербурга. Кирпичный 15-этажный дом , срок сдачи 1 кв. 2022 и располагается поблизости от станции метро Комендантский проспект. Квартира площадью 30.72 кв.м. на 15 этаже этого жилого дома имеет раздельный санузел, лоджию.
Инфраструктура
  • Кафе
  • Кинотеатры
  • Магазины
  • Медицина
  • Музеи
  • Образование
  • Парки
  • Спорт
Продажа квартир на Плесецкая
Ещё 4 фото
Все 399 объектов
Продажа квартир у метро Комендантский проспект
Ещё 4 фото
Все 399 объектов